Продам квартиру-студию в новостройке 32.5 м.кв.

на карте
Просмотров 6
9 410 500 руб.
на 20% дешевле похожих объектов ?
Анапа , Крылова улица, д.к1
Отдел продаж
Показать телефон
Данные актуальны на 24.01.2026
Пожаловаться на объявление
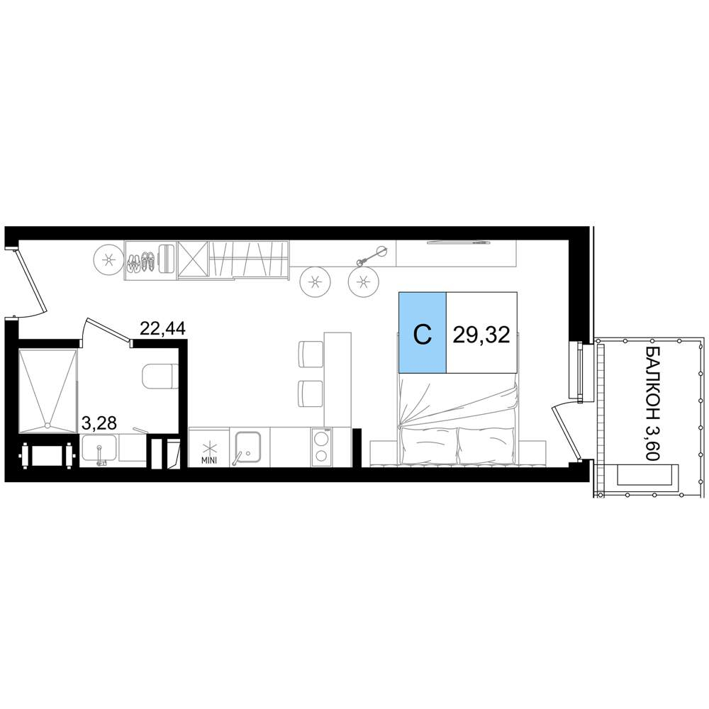
Продается студия, площадью 32.45 м2 в панельной новостройке. Возможен вариант покупки с использованием ипотечных средств, возможна покупка с использованием материнского капитала. Жилая площадь 21.9 м2, предчистовая отделка, комнаты смежные. Квартира располагается на 2 этаже 12-этажного дома в ЖК На Высоком берегу. Застройщик - ГК ССК, сдача дома - II квартал 2027 года, высота потолков 2.7 м. Дом оборудован пассажирским лифтом. Подземная парковка. Инфраструктура: детские площадки, спортивные площадки, места для отдыха, рестораны. Семейный квартал «На Высоком берегу» расположен всего в 300 метрах от моря, где каждая деталь создана для вашего максимального комфорта. Квартиры с высотой потолков 2,7 метра, просторные мастер-спальни и великолепные виды. 169 уникальных, современных и функциональных планировок, каждая из которых разработана специально для комфортной семейной жизни. Продуманное зонирование, рациональное использование пространства и эстетика современного дизайна делают каждую квартиру настоящим воплощением мечты о жилье премиум-класса. Мы создали комфортные финансовые условия для приобретения квартиры в семейном квартале «На Высоком берегу». Теперь вы можете оформить рассрочку на 12 месяцев, сохранив выгодную цену на недвижимость. Приобретайте квартиру с первоначальным взносом 20% при регистрации ДДУ. Последующие платежи составят 15% через месяц и 20% через два месяца после оформления. Оставшиеся 45% вы сможете выплачивать удобными для вас способами - ежемесячно или ежеквартально, без переплат и по первоначальной стоимости. Это предложение позволяет стать владельцем качественной квартиры, грамотно распределив свой бюджет. Рассрочка делает покупку доступной, а прозрачные условия помогают планировать финансы без неожиданностей. Узнайте больше о доступных квартирах и специальных условиях на консультации с нашим менеджером. Позвоните и узнайте условия покупки прямо сейчас!

Параметры здания

Тип дома Панельный Год постройки 2027 Дом сдан Нет Лифт Есть
Мусоропровод - Охрана/консьерж Нет Парковка Нет

Параметры объекта

Этаж 2 Этажность 12 Площадь комнат - Жилая площадь 21.9 м.кв. Площадь кухни - Высота потолков 2.7 м. Покрытие пола - Санузел - Балкон -
Окна выходят - Телефон - Интернет - Мебель - Бытовая техника - Кондиционер - Отделка - От застройщика Нет

Параметры продажи

Тип продажи Первичная продажа Торг -
Ипотека Да
Объекты, находящиеся поблизости
Банки, банкоматы
ПАО Сбербанк 181м
ПАО Сбербанк 487м
Магазины
Магнит 234м
Мир продуктов 346м
Агрокомплекс Выселковский 443м
Столовые, кафе
Кофейня Juli 201м
Coffee Like 246м
Сели Поели 337м
Kusto 680м
Крылья вкусА 695м
Больницы, поликлиники
Инвитро 483м
Аптеки
Апрель 226м
Пульс 351м
Фитофарм 426м
Парковки
Магнит 253м
Почта
Анапа 353454 155м
СДЭК 323м
Динамика изменения цен на рынке недвижимости ?

По городу Анапа, в категории Квартиры в новостройках » Студии
За последние полгода средняя сумма за кв.м. выросла на 74054 руб. Колебание цен происходило от 286385 руб. до 360439 руб. На текущий момент наблюдается тенденция к росту цены.
Похожие объявления
Обновлено
31.01.2026
Фотографии
10
Объявление 5005917
Анапа, Сосновый проезд, д.10 литера 1
9 855 000
руб. Продажа
27 м2
Обновлено
30.01.2026
Фотографии
10
Объявление 5005690
Анапа, Сосновый проезд, д.10 литера 1
9 855 000
руб. Продажа
27 м2
Обновлено
24.01.2026
Фотографии
10
Объявление 5011107
Анапа, Симферопольское шоссе, д.100
11 581 400
руб. Продажа
29.3 м2
Обновлено
24.01.2026
Фотографии
14
Объявление 4954999
Анапа, Симферопольское шоссе, д.100
12 406 950
руб. Продажа
31.4 м2
Обновлено
24.01.2026
Фотографии
6
Объявление 5022718
Анапа, Крылова улица, д.к1
9 735 000
руб. Продажа
32.5 м2
Обновлено
24.01.2026
Фотографии
6
Объявление 5022706
Анапа, Крылова улица, д.к1
9 735 000
руб. Продажа
32.5 м2
Обновлено
24.01.2026
Фотографии
6
Объявление 5022085
Анапа, Крылова улица, д.к1
9 410 500
руб. Продажа
32.5 м2
Обновлено
24.01.2026
Фотографии
6
Объявление 5022711
Анапа, Крылова улица, д.к1
9 410 500
руб. Продажа
32.5 м2
Обновлено
24.01.2026
Фотографии
6
Объявление 5022693
Анапа, Крылова улица, д.к1
9 410 500
руб. Продажа
32.5 м2
Обновлено
24.01.2026
Фотографии
6
Объявление 5022095
Анапа, Крылова улица, д.к1
9 410 500
руб. Продажа
32.5 м2
Вход в личный кабинет